Voltaje nominal MV:10/20/ 36 kV
Capacidad nominal:50 – 5000 kVA
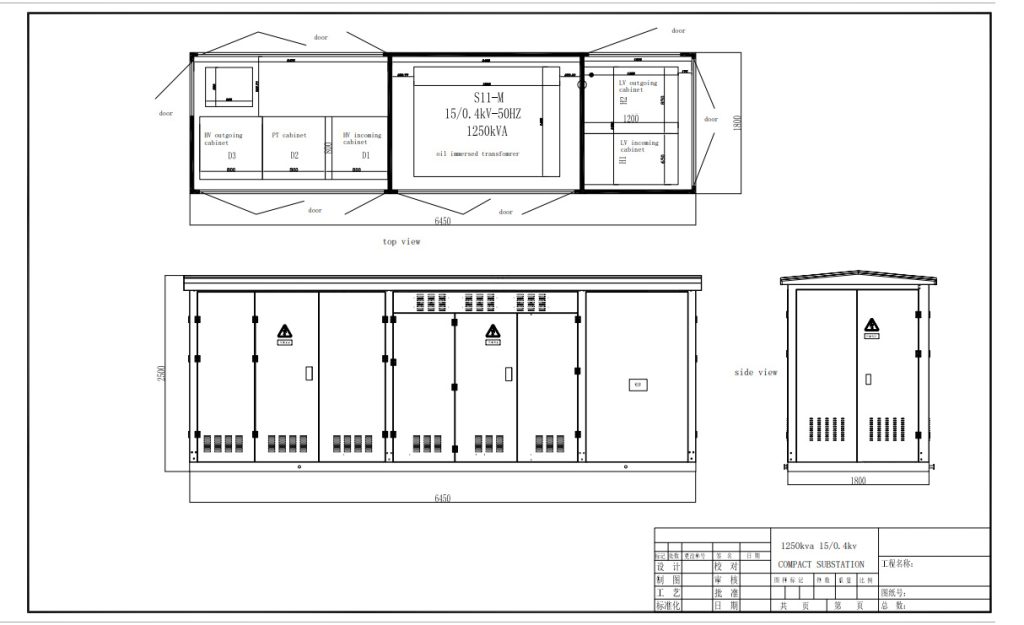
Las subestaciones compactas prefabricadas son soluciones integradas de distribución eléctrica diseñadas para proporcionar energía fiable, segura y eficiente en una sola estructura metálica totalmente cerrada. Esta solución completa combina equipos de media tensión (MV), transformadores de distribución y equipos de baja tensión (LV), configurados de fábrica y listos para instalación outdoor / indoor en proyectos urbanos, industriales y EPC de media tensión

Una subestación compacta (también conocida como CSS / PSS / USS) es una unidad de distribución eléctrica integrada que incorpora:
Equipo interruptor de media tensión
Transformador de distribución
Tableros de baja tensión y distribución
Celdas de protección, medición y control
Carcasa totalmente cerrada, resistente a la intemperie
Este diseño modular y prefabricado permite una instalación rápida, mínimo mantenimiento y reducción significativa del espacio requerido en comparación con las subestaciones convencionales.
Para garantizar cobertura SEO y coincidir con la terminología local de América Central y América del Sur, esta solución también puede etiquetarse como:
Subestación Compacta Prefabricada
Subestación Tipo Caja (Box-Type)
Subestación Unitaria de Distribución
Subestación de Paquete Integrada
Subestación Móvil Prefabricada
Unidad de Distribución Compacta

Todas las funciones de distribución se integran en una sola estructura compacta.
Ideal para espacios urbanos, industriales o zonas con limitaciones de terreno.
Entregado prefabricado y probado en fábrica, reduciendo el tiempo y costo de obras civiles.
Puede instalarse tanto al aire libre (outdoor) como en interiores (indoor).
Carcasa totalmente cerrada, resistente a humedad, polvo y contaminación.
Alta seguridad operativa con diseño anti-incendios y anti-robo.
Ocupa hasta 75% menos espacio que una subestación convencional.
Equipos internos diseñados y ensayados de acuerdo con normas internacionales (IEC / IEEE).
Operación confiable incluso en entornos hostiles y climas extremos.
Esta solución de subestación compacta es ideal para:
✅ Distribución urbana y residencial
✅ Centros comerciales y zonas de alta densidad
✅ Instalaciones industriales y parques tecnológicos
✅ Hospitales, campus y edificios públicos
✅ Proyectos EPC y licitaciones de energía
✅ Parques solares, eólicos y centros de datos
✔ Reducción de tiempo de instalación
✔ Costos de civil y obra muy inferiores
✔ Diseño prefabricado y probado en fábrica
✔ Solución integral de MV + Transformador + LV
✔ Mantenimiento mínimo
✔ Mejora de la seguridad y fiabilidad global del sistema
| Parámetro | Detalle |
|---|---|
| Voltaje nominal MV | 10/20/ 36 kV |
| Capacidad nominal | 50 – 5000 kVA |
| Aplicación | Outdoor / Indoor |
| Normas de referencia | IEC 62271‑202, IEEE C57.12.00, IEEE C57.12.28 |
| Configuraciones HV | RMU / VCB / AIS con o sin medición |
| Configuraciones LV | ACB / MCCB / HRC con o sin APFC |
| Protección IP | IP54 (compartimientos HV/LV) / IP23 (transformador) |