Tensión nominal: 10 kV/35 kV
Frecuencia nominal: 50/60 Hz
Escenarios de aplicación: Se utiliza para conectar el dispositivo SVG a la red eléctrica y lograr un almacenamiento en búfer de energía; reduce la ondulación del interruptor SVG y la interferencia de modo común; suprime la mutación de corriente cuando el inversor se conecta a la red eléctrica y logra una suavización de la corriente; cuando es necesario, puede ajustar la tensión de la red a una tensión adecuada para el funcionamiento del inversor.
Reactor de línea de núcleo de hierro de tipo seco SVG
Reactor de línea de núcleo de hierro seco SVG (compensación de potencia reactiva).
El reactor de línea SVG se conecta al extremo frontal del dispositivo SVG y sus funciones son las siguientes:
Se utiliza para conectar el dispositivo SVG a la red eléctrica para lograr un almacenamiento en búfer de energía;
Reduce la ondulación del interruptor SVG y la interferencia de modo común;
Suprime la mutación de corriente cuando el inversor está conectado a la red eléctrica y logra una suavización de corriente;
Cuando es necesario, puede ajustar la tensión de la red a una tensión adecuada para el funcionamiento del inversor.
Reactor de línea de núcleo de hierro seco SVG (compensación de potencia reactiva).
Nuestra empresa produce reactores de línea de núcleo de hierro seco SVG (compensación de potencia reactiva) de la serie CKSC con niveles de tensión de 35 kV o inferiores, corrientes de 25 A a 1000 A e inductancias superiores a 0,6 mH.
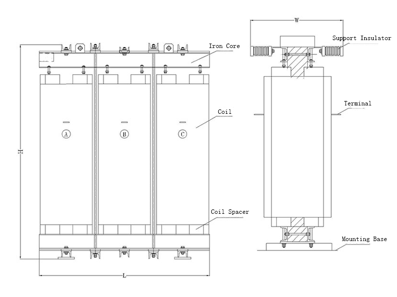
Estructura del reactor de línea de núcleo de hierro seco SVG
El reactor de la serie de núcleo de hierro tiene dos estructuras principales: el núcleo de hierro y la bobina.
El núcleo del reactor de línea de núcleo de hierro seco SVG presenta una estructura de tres columnas. La columna del núcleo está compuesta por un disco escalonado o radial, y los yugos de hierro superior e inferior son rectangulares o circulares. El núcleo está fabricado con láminas de acero al silicio laminadas en frío de alta calidad. Para reducir el ruido del núcleo, el disco del núcleo se funde y encapsula con resina de alta resistencia. El entrehierro entre los discos del núcleo se compone de varios segmentos pequeños, lo que reduce las pérdidas del núcleo y el ruido. El disco del núcleo se prensa mediante un tornillo de bajo magnetismo y un yugo de hierro. Para reducir la vibración del núcleo durante su funcionamiento, se utilizan materiales amortiguadores entre el núcleo y la base del reactor.
La bobina está bobinada con alambre de cobre o aluminio envuelto con materiales aislantes de alta calidad. Para evitar la generación de corriente circulante entre varios alambres durante el bobinado, el alambre está completamente transpuesto. Una vez enrollada la bobina, se utiliza resina epoxi de dos componentes para fundir la bobina al vacío y garantizar que no haya espacio de aire entre las vueltas y las capas del devanado, reduciendo así la descarga parcial del producto.
Normas de Referencia de Producto para Reactores de Línea con Núcleo de Hierro de Tipo Seco SVG
GB/T 1094.6-2011 Transformador de Potencia, Parte 6: Reactor
NB/T 10289—2019 Especificación Técnica para Reactores de Filtro con Núcleo de Hierro para Dispositivos de Compensación de Potencia Reactiva de Alta Tensión.
Parámetros Básicos de Pedido para Reactores de Línea con Núcleo de Hierro de Tipo Seco SVG
Tensión Nominal del Sistema
Corriente Nominal del Reactor
Inductancia Nominal del Reactor
Parámetros de rendimiento
Reactor de línea de núcleo de hierro de tipo seco SVG.

| Modelo de producto | Voltaje nominal | Corriente nominal | Inductancia nominal | Dimensiones | Peso |
| (kV) | (kVar) | (mH) | (LXHXW) | ( kg) | |
| CKSC-10-57.74-31.82 | 10 | 57.74 | 31.82 | 1010X1150X600 | 570 |
| CKSC-10-115.47-15.91 | 115.47 | 15.91 | 1100X1330X600 | 820 | |
| CKSC-10-173.21-10.61 | 173.21 | 10.61 | 1160X1420X610 | 1040 | |
| CKSC-10-230.94-7.95 | 230.94 | 7.95 | 1360X1460X650 | 1330 | |
| CKSC-10-288.68-6.36 | 288.68 | 6.36 | 1430X1560X750 | 1450 | |
| CKSC-10-317.54-5.78 | 317.54 | 5.78 | 1430X1500X750 | 1650 | |
| CKSC-10-346.41-5.3 | 346.41 | 5.3 | 1430X1560X750 | 1720 | |
| CKSC-10-461.88-3.97 | 461.88 | 3.97 | 1700X1650X850 | 1980 | |
| CKSC-10-577.35-3.18 | 577.35 | 3.18 | 1790X1730X860 | 2300 | |
| CKSC-10-693.82-2.65 | 693 | 2.65 | 1790X1760X900 | 2830 |