Tensión nominal: 13.8 kV / 23 kV / 33 kV
Capacidad nominal: 500 kVA-8000 kVA
Escenarios de aplicación: Adecuado para la construcción y transformación de redes eléctricas urbanas y rurales.
Certificaciones y normas: Emitidas por TÜV: CE, CB, IEC, EN, ISO 9001, 14001 y 45001.
Las subestaciones prefabricadas tipo caja, también conocidas como subestaciones prefabricadas, suministran energía directamente a los usuarios. Se trata de un equipo de distribución de energía compacto, prefabricado, para interiores y exteriores, que integra una aparamenta de alta tensión (sala de alta tensión), un transformador de distribución (sala de transformadores) y un dispositivo de distribución de baja tensión (sala de baja tensión) según un esquema de cableado específico. Las funciones de reducción de tensión y distribución de baja tensión se combinan orgánicamente, y la subestación se instala en una caja de estructura de acero móvil, completamente cerrada y a prueba de humedad, polvo e incendios, especialmente adecuada para la construcción y reconstrucción de redes eléctricas urbanas y rurales.
La sala de alta tensión es el lado de la fuente de alimentación, generalmente líneas de entrada de 13.8 kV / 23 kV / 33 kV, que incluyen barras colectoras de alta tensión, interruptores automáticos o fusibles, transformadores de tensión, descargadores, etc. El transformador se ubica en la sala de transformadores y es el equipo principal de la subestación tipo caja. La sala de transformadores incluye los transformadores, que constituyen el equipo principal de la subestación. La sala de baja tensión incluye barras colectoras de baja tensión, interruptores automáticos de baja tensión, dispositivos de medición, etc. Las líneas se derivan de las barras colectoras de baja tensión para suministrar energía a los usuarios.
Las subestaciones prefabricadas se dividen en triangulares y rectangulares según la disposición de su estructura; subestaciones tipo caja de terminales y subestaciones tipo caja de red en anillo según el modo de suministro de energía de alta tensión. Ambos lados de la base de la caja están equipados con dispositivos de elevación de empuje y tracción que facilitan la elevación, el transporte y la instalación. Las salas de alta y baja tensión pueden adoptar una estructura estándar, una estructura de pantalla o una estructura de marco. La primera es muy completa y la segunda tiene un tamaño total compacto.
Normas de Implementación
GB 1094.1-2013: Transformadores de potencia - Parte 1: Generalidades.
GB 1094.2-2013: Transformadores de potencia - Parte 2: Aumento de temperatura.
GB 1094.3-2003: Transformadores de potencia - Parte 3: Niveles de aislamiento, pruebas de aislamiento y entrehierros para aislamiento externo.
GB 3906-2006: 3,6 kV - 40. Aparatos de conmutación y controles con envolvente metálica de 5 kV CA GB/T 11022-2011: Condiciones técnicas comunes para las normas de aparamenta y controles de alta tensión.
GB 7251.1-2013: Paquetes y controles de baja tensión Parte 1: Generalidades GB 14048.1-2006: Aparatos de conmutación y controles de baja tensión Parte 1: Generalidades GB/T17467-2010: Subestaciones prefabricadas de AT/BT.
Características
+ Tamaño compacto, tamaño compacto, movilidad en cualquier momento según la demanda y fácil transporte e instalación.
+ Distribución estructural razonable, con posibilidad de configuración en forma triangular o rectangular según la demanda.
+ Cada sala funcional es independiente, lo que facilita y agiliza el mantenimiento y la sustitución de piezas.
+ La carcasa cuenta con ventilación natural, lo que reduce el calor durante el funcionamiento.
+ Se puede utilizar en diversos entornos con un alto nivel de protección.
Condiciones ambientales
a Altitud inferior a 4000 m;
b Temperatura ambiente: -45 °C a +45 °C;
c Humedad relativa: La humedad media diaria no supera el 95 % y la media mensual no supera el 90 %.
Nota: Si no se cumplen las condiciones mencionadas, deberá consultar con el fabricante.
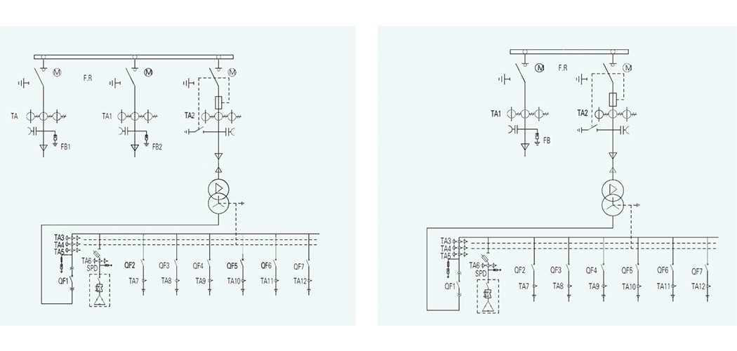
Diagrama unifilar atípico
Diagrama unifilar principal de una subestación de red en anillo. Diagrama unifilar principal de una subestación de tipo terminal.
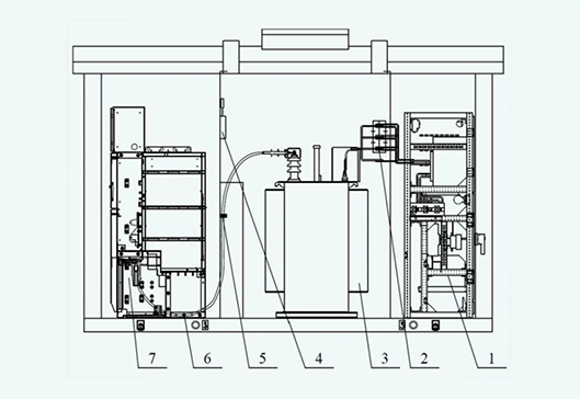
Dibujo del límite de la caja: (Tomemos 630 kVA como ejemplo)
1. Aparamenta de baja tensión 2. Bastidor de barras aislado 3. Transformador
4. Carcasa del transformador tipo caja 5. Abrazadera para cables 6. Cable de alta tensión de 10 kV
7.Aparamenta de alta tensión
Subestación prefabricada (subestación tipo caja).
Transformadores de pedestal de estilo americano.
Transformador de caja especial para generación de energía de nueva energía (fotovoltaica/eólica).
Transformador de caja especial para generación de energía nueva (fotovoltaica, eólica).


